2021年10月12日,第56届日本中央玻璃国际建筑设计竞赛(第56回セントラル硝子国際建築設計竸技)结果公布。
天津大学建筑学院的参赛作品“THE BLEND OF BATHHOUSE AND GALLEREY(共生——美术馆+浴场)”(学生:陈航星、蔡定夏;指导教师:辛善超、张昕楠)荣获佳作奖。这是自李斯奇同学2014年荣获第49届日本中央玻璃国际建筑设计竞赛奖项以来,我院同学再次斩获该国际大奖。

获奖名单
竞赛历史
セントラル硝子国際建築設計竸技创办于1966年,从第10届开始,该竞赛已成为国际性比赛,每年面向世界各个国家征集参赛作品。竞赛评审团多为日本建筑界权威教师及日本知名建筑设计师,竞赛追求在面对复杂任务时,设计师所体现出的梦幻又自由的想法以及深刻的思考。
セントラル硝子国際建築設計竸技希望能打造思考当今社会和环境的契机,注重在这个社会和环境中,如何追求经济效率和合理性,以及保护自然环境和历史传统文化。经过56年的发展,セントラル硝子国際建築設計竸技已成为全球建筑竞赛中历史最悠久、最有含金量、难度最大的竞赛之一。
竞赛内容
第56届セントラル硝子国際建築設計竸技的主题为“交感空间(Interpathetic Spaces)”,意在让参赛者思考“我们应该如何生活在一个以数字进步和冠状病毒大流行为特征的时代?”这一问题,希望参赛者能通过建筑的手段引导人们与生俱来的感受事物的能力,提出一个能够吸引人们的感官并且无法通过数字技术实现的实际的“交感空间”,在这个空间中能与其他人一起感受事物并将我们的感受传达给彼此。

竞赛主题
本届竞赛的评委为内藤博、隈研吾、龟井忠雄、青木淳等五位知名建筑师。本次竞赛在9月14日进行了初审,经过严格筛选,从268个参赛作品中产生了7个通过初审的作品和10个佳作奖。获奖作品来自日本、中国大陆、香港、台湾地区,以及美国、克罗地亚、新加坡、瑞士等国家。

评审阵容
设计解读

方案图纸
在强调社交距离的后疫情时代与数字媒体时代的共同冲击下,昔日的社交天堂——浴场走向没落。我们试图将展览的功能赋予浴场,美术馆与浴场融为一体,创造同时调动多种感知觉的全新的浴场模式,重新定义社交距离——浴场中人与人之间的距离、浴场与展厅之间人与人之间的距离,使得浴场空间更富有吸引力,重塑浴场社交活力,形成一个无法通过数字技术模拟实现的感知空间。
不断演变的浴场功能
洗浴建筑自诞生以来,其社会作用不断地在发生变化。从纯粹单一的洗浴功能变得越来越多元化、复杂化。
近代以来,中国公共洗浴建筑逐渐转变为综合性娱乐会所,在朝着世俗化发展,失去了沐浴原有的文化与诗意。对此,美术馆+城市浴场的出现,可以重拾沐浴习俗的文化属性,将沐浴与艺术观展结合起来。

浴场功能分析
概念意向
美术馆与浴场相互渗透,将城市浴场置于地下层,美术馆置于地上一层及二层。美术馆与城市浴场两者空间互相渗透,但在视觉上相互隔绝。
在美术馆中,可以感受到底层浴场的空间氛围及明暗变化,但不能看到浴场中活动的人群。在公共浴场中,可以在游泳前行的时候观赏到四周的艺术展品,以自己最舒服的方式欣赏艺术,美术馆的功能同时延伸到公共浴场之中。

概念图解1

概念图解2
效果图

浴场空间效果图

美术馆空间效果图


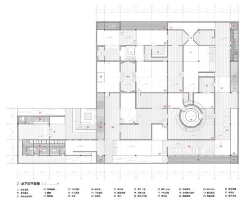
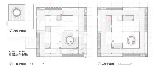
平面图

地下层平面图

其他层平面图
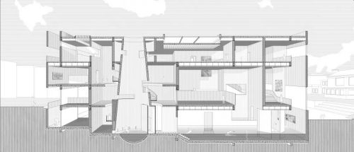
剖透视图

轴测爆炸图

细节设计
为防止底层浴场高温高湿的环境影响到艺术展品,底层浴场中的展品以石刻、陶板画、马赛克画等不被水蒸气影响的作品为主,艺术品直接暴露给游客,以防止水汽对观展体验及艺术品寿命的影响。
在美术馆中设置部分封闭展厅与浴场隔绝,在这之内的展品不会受到水蒸气的影响。部分与浴场相通的空间只作为交通空间和活动空间使用。

为保证浴场使用者的隐私,美术馆与浴场虽空间氛围相通,但在视线上相互隔绝(朝天歌台空间除外)。空间处理上,运用片墙、2000mm磨砂玻璃、错层等手法阻挡两类人群的视线交流。

模型照片


指导教师评语
辛善超老师:
设计将美术馆+拆解为两个部分,一是传统意义上的展陈空间,其次将空间本身作为一个供人冥想与体验的场所,沐浴空间与美术馆空间由此联系于一起,形成空间彼此之间的交织。
光线从缝隙中浸润于建筑内部,光影随时间变化而愈发动态,丰富展陈空间的同时,赋予浴场空间以洞穴般体验。

