时间:6.23-7.20
地点:建筑学院2层展厅
本次毕业作品展览共展出2010级建筑学毕业生作品103份。其中天津大学72份,釜庆大学31份,选题涉及城市历史地段更新、传统村落复兴、文化遗产保护与展示设计、集装箱建筑、城市商业综合体、声学研究、寒冷地区建筑能耗研究等。
学院近年在毕业设计题目设置、设计周期、程序管理上进行了改革尝试。在题目上,设置建筑遗产保护、绿色建筑、参数化、博览建筑、人居建筑、建筑声学等设计和研究专题,为学生提供多元化的选择;在周期上,将原来的1个学期延长至1.5或2个学期,以保障毕业设计的深度;在程序上,设置中期考核、毕业设计联展、一次答辩、二次答辩等环节,有效把控毕业设计进度,提高毕业设计质量。
此次作品既是同学们对所学知识的阶段性总结,也是在初面对更广袤的现实世界时的一场自我反思。欢迎大家莅临检阅!
以下是部分作品赏析:

四号路工人新村适老化研究-托老中心及室外公共空间
学生姓名:白振霞 指导老师:赵建波
 
传统院落村民中心建筑设计
学生姓名:邓鹤 指导老师:赵建波

浙江桐庐凤川镇格局研究于主题旅馆设计1
学生姓名:杨丹凝 指导老师:许蓁

邯郸市串城街历史街区城墙遗址再现设计
学生姓名:李翔 指导老师:张春彦
 
某商业综合体特色商业单体设计二
学生姓名:黄乔 指导老师:任军

过去的现在:留园铺地中物的叙事和人的历史
学生姓名:刘世达 指导老师:丁垚

集装箱阅读体验船构造研究(1)
学生姓名:刘佳宁 指导老师:张頎 王志刚

集装箱阅读体验船构造研究
学生姓名:刘涵冰 指导老师:张頎 王志刚

清代皇家建筑室内空间研究——圆明园慎德堂
学生姓名:谢海 指导老师:何蓓洁


清漪园大报恩延寿寺组群复原设计
学生姓名:阎晓旭 张松 钱梦菲 谢明轩 刘晓宇 刘婉琳 指导老师:张龙

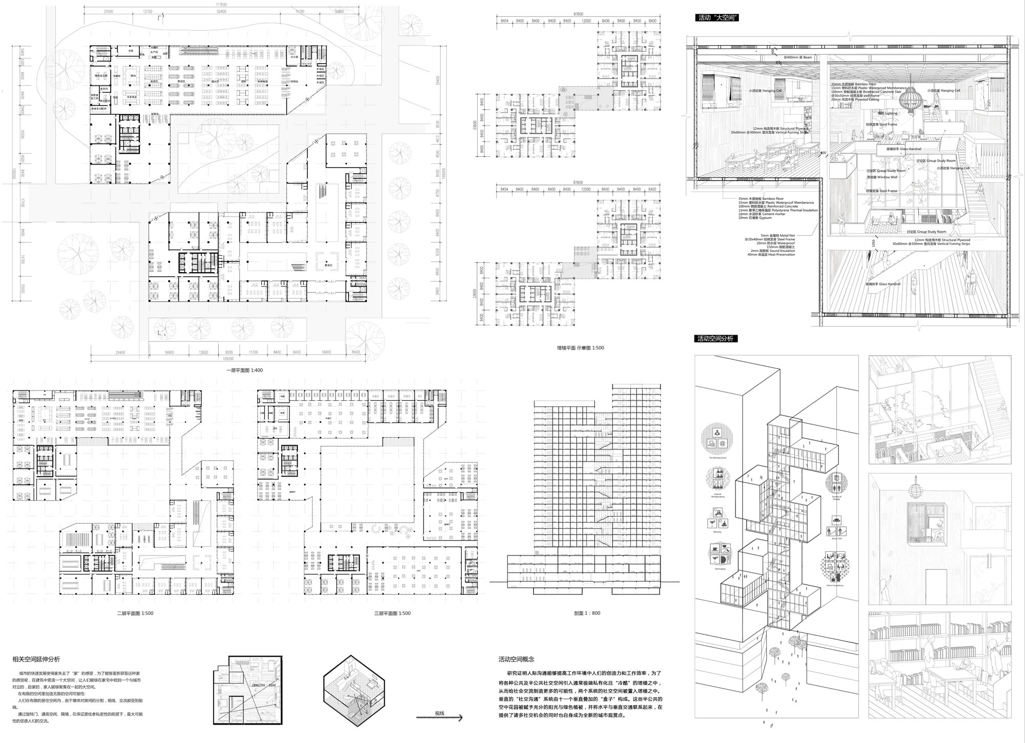
某城市综合体酒店式公寓单体设计二
学生姓名:郭文昭 指导老师:严建伟

老天津英法租界历史记忆场所再生
学生姓名:郭婧舒 指导老师:郑颖 胡莲




八校联合——风水的居所
学生姓名:余啸、周平

